开云体育官网下载
导航
关闭
当前位置: 首页 > 新闻中心 > 行业动态

行业动态

开云体育官网下载:徐汇东安项目(营销中心)官方网站-徐汇东安项目销售中心(售楼处)-楼盘欢迎您-地址-价格-户型-小区环境-楼盘详情-交房时间-周边配套-售楼处电话

来源:开云体育官网下载    发布时间:2025-10-21 15:14:09

开云体育官网登陆:

  您当前使用的浏览器版本过低,有几率存在安全风险,建议升级浏览器,或者用以下浏览器浏览

  徐汇东安项目(营销中心)官方网站-徐汇东安项目销售中心(售楼处)-徐汇东安项目楼盘欢迎您-地址-价格-户型-小区环境-楼盘详情-交房时间-周边配套-售楼处电话

  徐汇东安项目(营销中心)官方网站-徐汇东安项目销售中心(售楼处)-徐汇东安项目楼盘欢迎您-地址-价格-户型-小区环境-楼盘详情-交房时间-周边配套-售楼处电话

  徐汇东安项目售楼处电话:【预约看房热线】徐汇东安项目官方售楼处电线【售楼处电话/地址】徐汇东安项目售楼处电话:【开发商认证】

  放风价破20万/㎡ 徐汇滨江【中海东安项目】首发住宅方案曝光!丨主力面积约200-400m²丨接待中心开放预约

  如有问题欢迎来电咨询,预约来电尊享购房优惠,可预约案场内部销售人员,专业一对一热情服务,让您用专业眼光去买房。

  徐汇东安项目售楼处电话:【预约看房热线】徐汇东安项目官方售楼处电线【售楼处电话/地址】徐汇东安项目售楼处电话:【开发商认证】

  9月5日,中海地产、招商蛇口、徐汇城投、中旅投资组成的联合体,通过上海联合产权交易所正式完成徐汇东安城市更新项目核心地块(127b-24、125-31)的股权交易,获取上海徐汇区核心区位约50万方大体量开发权。

  徐汇东安项目售楼处电话:【预约看房热线】徐汇东安项目官方售楼处电线【售楼处电话/地址】徐汇东安项目售楼处电话:【开发商认证】

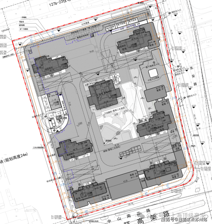
  公开信息显示,东安项目位于上海市徐汇区核心位置,该项目由徐汇区C030301单元127b-24、125-31两幅地块组成,总出让金额高达439.5亿元,刷新全国涉宅用地出让总价纪录。东安项目也是目前上海内环内顶级规模的城市更新项目。

  昨日,127b-24地块方案公示。127b-24地块占地面积约3万平方米,容积率2.5,限高100米,总住宅面积约7.5万平方米。拟建2栋13层小高层+5栋25-28层高层,总户数290户。

  徐汇东安项目售楼处电话:【预约看房热线】徐汇东安项目官方售楼处电线【售楼处电话/地址】徐汇东安项目售楼处电话:【开发商认证】

  抬升规划 强调空间的层次感与仪式感:最大化地下空间利用与优化停车体验,抬板下方能形成完整、层高充裕的地下室空间;

  场景动线 实现空间的延伸序列感:抬板层可当作重要的衔接转换层,消化地形变化,使上部住宅拥有更好的景观视野或朝向,同时下部空间也能充分利用。

  2、独特的豪宅秩序:总图楼栋排布和外围退界设计呈现豪宅秩序和私密感:抬板之后整体项目1F比外界面高,形成了内部秩序私密,外部弹性配套界面的完整包裹,划开居住和外部空间;极致隐奢入口,融入城市感的配套街道;私密性好的同时也因为抬板减轻了西侧学校和东侧马路的噪音影响和视线干扰;

  3、上海首个“岛屿归家”的社区:项目总图能够准确的看出地块方正规整、面宽资源、楼间距条件好,平面排布呈现很强包裹性,完整7栋楼小区状态,整个小区限高100m,东侧南侧为配套裙房。因抬板设计,景观渗透,楼栋有点像“浮岛”状态,形成了【一楼一岛,浮空花园】的独特场景;

  徐汇东安项目售楼处电话:【预约看房热线】徐汇东安项目官方售楼处电线【售楼处电话/地址】徐汇东安项目售楼处电话:【开发商认证】

  4、三层礼序归家社区:归家动线可实现,大采光地下室、采光通风车库、立体景观、三层归家花园;

  5、上海截止目前大采光量的阳光地库:通过下沉会所+每栋楼的下沉花园实现,将自然光和通风引入地下车库,减少压抑感,改善环境,降低能耗。同时最大化地下空间利用与优化停车体验:这是最核心的优势之一。通过在首层设置结构转换层(抬板层),将整个住宅建筑主体抬升后优化车库流线:,更充裕的空间便于设计更合理的车道、坡道和车位布局,提高停车效率。

  优化停车及归家动线:居民的主要人行入口和活动平台位于抬板层,与地下车库出入口分开,实现宁静的居住体验;

  6、中央核心空间近4000平:抬板后中央空间更具备垂直落差感;下沉庭院挑空面积能做到最大,实现立体景观绿化,在抬板层进行大面积的绿化造景,形成“空中花园”。同时为低层住户提供优美的窗景。

  【面宽楼间距】:楼栋间距条件好,最大可至70m+,其中中心楼王位置四面视野好,斜向楼间距大【架空】5幢楼全架空,会所+泛会所功能布局;

  8、户型想象:【户型猜测】:全t2楼栋,户型建筑面积预估200-600平米,单地块做到了200-600平米,并有超大平层顶平、顶复,妥妥豪宅社区。目测有上海首个200+户型客厅全景舱、三面采光客厅户型;

  1、徐汇滨cbd由香港置地西岸金融城和东安项目两个地王一起组成的,总规模超 230 万方,总投资超1000亿

  徐汇滨江是上海当前重点发展的核心功能区,稀缺性和未来潜力是公认的。我们东安项目与上一个全球地王——西岸金融城,仅一路之隔,两大“地王”共同构筑起徐汇滨江开发的核心龙头,会形成总规模超 230 万方的核心CBD。可以说我们项目和“西岸金融城”是“完美搭档”,金融城侧重于办公、重奢商业、产业导入、滨水休闲;而我们项目则更多承载高端居住和活力配套,形成了一个很完整的生态圈,我们理解这样的生态圈才是顶豪市场应该有的姿态,是缺一不可的。

  徐汇东安项目售楼处电话:【预约看房热线】徐汇东安项目官方售楼处电线【售楼处电话/地址】徐汇东安项目售楼处电话:【开发商认证】

  2、这个CBD是顶层设计、统一规划、成片开发、深层次地融合的,是一个完整的生态圈,聚集了顶级的资源

  项目也代表了上海城市更新的新阶段,由政府顶层设计,四大央国企和港资主导,进行成片统一规划和开发,告别了过去缝缝补补的旧改模式,在功能和完善度会得到全面的提升。这个超级大项目的启动,会让顶级富豪们更加认同上海核心资产的价值。

  西岸金融城是一个集办公、产业、商业、文化艺术、滨水休闲等五大元素于一体的全域超大规模综合体,总投资超600亿元,总体量约180万平方米,是香港置地史上,也是上海历史上最大的单一地产投资项目,其住宅部分启元和高端服务式公寓西岸中环汇已经交付入住,其他业态预计在2027年-2028年全面开放(以上来自互联网公开数据,目前正在建设中)

  Ø 办公:65w平米,多达12栋超甲级写字楼,目前已经签约落户的有阿迪达斯大中华区的总部、lululemon中国区总部等

  Ø 产业:产业与办公相辅相成,徐汇区的产业底蕴和发展能级十分雄厚,无论是地段、楼品还是招商引资能力实力都非常强。目前已经签约落户的有阿迪达斯大中华区的总部、lululemon中国区总部等,

  Ø 商业:西岸金融城中包含24w平米的商业空间,这中间还包括一个shopping mall,还有一个顶奢街区商业。两者之间要由一条1.2公里的步行商业大道串联,汇集600多个品牌店铺,将是整个亚洲最具有地标性的商业步道。

  西岸中环是拥有三座文华东方的单一项目。三座文化东方提供了三种完全不同的生活体验——这里有一座都市度假酒店、一座经典顶级奢华酒店和一座顶级酒店服务公寓。

  Ø 艺术:西岸金融城范围内规划了「西岸漩心」「种子馆」「天文馆」「艺展中心」等文化艺术地标。其中「西岸漩心」自2024年开放短短一年以来,就承办了20余个国际大品牌的大型发布会。

  高端住宅:住宅是稳定价值的“压舱石”,目前徐汇滨cbd已经有了启元、潮鸣东方这样的豪宅作品,但是体量都比较小。东安项目未来将带来超过1400户4000万以上的高净值客群,形成纯粹的圈层

  滨江、产业、艺术、公园、商业、住宅,这些元素在上海乃至全球都不罕见。但能将所有这些顶级资源,在城市核心滨水区进行统一规划、成片开发、深层次地融合的,徐汇滨cbd。

  徐汇东安项目售楼处电话:【预约看房热线】徐汇东安项目官方售楼处电线【售楼处电话/地址】徐汇东安项目售楼处电话:【开发商认证】

  根据目前获得的消息,地块将规划建造7栋12-26楼高层住宅,高度50-100米不等。主力户型为170/190/270/350㎡的纯大平层产品,没有中小套型!入门面积170㎡户型沿中山南二路高架位置布置。

  徐汇东安项目售楼处电话:【预约看房热线】徐汇东安项目官方售楼处电线【售楼处电话/地址】徐汇东安项目售楼处电话:【开发商认证】

  徐汇东安项目售楼处电话:【预约看房热线】徐汇东安项目官方售楼处电线【售楼处电话/地址】徐汇东安项目售楼处电话:【开发商认证】

  周边一公里范围内由南洋中学,周边江南新村小学、日晖新村小学等教育资源聚集。同时坐拥中山医院、龙华医院等顶级医疗资源;

  西岸金融城,复地御江庭项目、正大乐城、绿地缤纷城、保利时光里等大型商业环伺。

  还有东安公园、徐汇滨江绿地、滨江滑板公园、龙美术馆、星美术馆等满足景观休闲需求。

  如有问题欢迎来电咨询,预约来电尊享购房优惠,可预约案场内部销售人员,专业一对一热情服务,让您用专业眼光去买房。

  徐汇东安项目售楼处电话:【售楼中心热线】徐汇东安项目营销中心热线徐汇东安项目售楼处地址400_812_3664,楼盘项目全面介绍,本电话为开发商提供线上预约售楼电话,楼盘项目全面介绍(包含楼盘简介,均价,房价,现房,期房,别墅,叠墅,大平层,价格,楼盘地址,户型图,交通规划,备案价,备案名,项目配套,样板间,开盘时间,认筹时间,楼盘详情,售楼处电话,一手消息,最新详情,周边配套,一房一价,最新进展等详情咨询)楼盘详情丨价格丨更多优惠丨机不可失丨欢迎致电丨诚邀品鉴!售楼处位置丨特价房丨工抵房丨剩余房源丨户型图丨一手消息丨免责声明:将文章的主要内容综合来自互联网、只作分享,版权属于原本的作者所有!!如有侵权,请联系我们,我们第一时间处理如有问题欢迎来电咨询,专业一对一热情服务,让您用专业眼光去买房。如果您想知道更多楼盘详情,欢迎提前预约拨打徐汇东安项目售楼处电话

  在北京楼市政策优化之后,上海紧随其后对限购规则作出调整。8 月 25 日,上海市住房城乡建设管理委、市房屋管理局等六部门联合发布《关于优化调整本市房地产政策措施的通知》,推出涵盖住房限购、公积金使用、住房信贷、房产税收等 6 项内容的调整举措,新政自 8 月 26 日起正式实施。

  这是上海本年度首次出台楼市新政,业内一致认为,此次政策以 “组合拳” 形式精准回应市场诉求,助力楼市平稳向好。其中,外环外限购松绑、房贷利率取消首二套区分、公积金 “又提又贷” 落地及房产税微调四大亮点,成为激活市场的关键抓手。

  此次新政在限购调整上聚焦 “精准发力”,重点放开外环外购房额度限制,破解市场结构性难题。

  根据新政规定,满足上海购房资格的居民家庭(含沪籍家庭、连续缴满 1 年社保或个税的非沪籍家庭),在外环外购买新建商品住房或二手住房,不再限制套数;成年单身人士的限购标准与居民家庭完全一致。具体来看:

  · 非沪籍家庭及成年单身:缴满 1 年社保 / 个税可在外环外不限套数购房,缴满 3 年可在外环内限购 1 套。

  上海中原地产市场分析师卢文曦指出,当前上海楼市整体稳定但结构性差异明显,外环外新房库存去化仍有压力。此次放开外环外购房额度,既能直接释放购买力,加速库存消化,也能推动置换交易链条更顺畅。上海易居房地产研究院副院长严跃进提供的多个方面数据显示,今年前 7 月,上海外环外新建商品房成交 17024 套,占全市 28265 套成交总量的 60%,新政落地后这一占比预计将进一步提升。

  “置换型买家是当前市场主力,但不少人受‘房票’限制,尤其是外地单身买家,常面临‘旧房卖不掉、新房买不了’的困境,被迫降价抛售既造成个人损失,也加剧二手房价格波动。” 卢文曦补充道,新政增加购房额度后,买家可选择 “先买后卖”,减少抛售压力,有助于稳定二手房价格预期。

  58 安居客研究院院长张波则表示,新政对在沪工作的单身青年人才、新市民友好度明显提升,满足社保 / 个税年限后即可轻松购房,这一群体的活跃度将显著提升,与外环外限购松绑形成合力,有效释放刚需及改善需求。

  在个人住房信贷优化方面,新政带来实质性成本减负 —— 银行业金融机构将不再划分首套与二套住房的利率定价差异,而是结合市场自律要求、自身经营状况及客户风险等级,灵活确定每笔商业性个人住房贷款的实际利率。

  这一调整让购房者直接受益。以 200 万元商贷、30 年还款期为例,新政前首套房月供约 8486 元,二套非差异化地区月供达 8925 元;新政实施后,二套房利率可大幅下调,非差异化地区每月能减少 439 元支出,长期下来节省的成本相当可观。

  业内专家这样认为,此前全国已有多地取消房贷利率首二套差异,以杭州为例,去年 10 月实施该政策后,当月新房成交面积环比增长 16%,11 月环比增幅逐步扩大至 21%。当前上海中高端改善市场热度较高,信贷政策支持将延续这一热度,而高端改善房源的销售顺畅,也将成为稳定市场预期、彰显上海楼市潜力的重要风向标。

  新政对住房公积金政策的优化的力度显著,既提高绿色建筑贷款额度,又落地 “又提又贷” 政策,双重利好支持购房需求。

  具体来看,缴存人购买二星级及以上新建绿色建筑住房时,公积金(含补充公积金)最高贷款额度提升 15%:首套从 160 万元提至 184 万元,多子女家庭首套可叠加优惠,从 192 万元升至 216 万元;二套从 130 万元提至 149.5 万元。此外,缴存人购买新建预售商品房时,可提取本人及配偶公积金支付首付,且提取后不影响公积金贷款额度的计算,打破了此前 “提了就不能贷” 的限制。

  业内人士分析,公积金提取用于首付,拓宽了购房者的资产金额来源渠道,能帮助更多人尽早 “上车”;而绿色建筑贷款额度上浮,既满足了购房者对高品质住房的需求,也能引导开发商加大绿色建筑投入,推动楼市品质升级。上海链家研究院负责人李根表示,外环外不限套数购房与公积金优化政策组合,将精准释放改善需求,有望推动外环外新房迎来销售高峰,同时带动二手房交易活跃,稳定二手房价格。

  为与限购优化相衔接,新政对个人住房房产税征收规则作出微调:合乎条件的非沪籍居民家庭购买首套住房暂免征收房产税;购买第二套及以上住房时,合并计算家庭总住房面积后,按人均 60 平方米的标准扣除免税面积。由于房产税按年征收,2025 年 1 月 1 日起合乎条件的买房的人可享受这一优惠。

  严跃进指出,此次微调放宽了家庭住房认定标准,让非沪籍家庭与沪籍家庭的房产税政策口径更趋一致,既衔接了外环外限购松绑的举措,也能更好地吸引人才在沪工作生活,进一步促进住房消费。

  业内专家一致认为,上海此次新政是对市场诉求的积极回应。自去年全国 “930” 新政以来,房地产市场总体朝着止跌回稳方向发展,今年二季度起各地市场出现新变化,亟需政策进一步加码。此次上海新政的落地,也贯彻落实了 6 月国常会 “更大力度推动房地产市场止跌回稳” 及 8 月国务院 “巩固止跌回稳态势” 的相关部署。

  从市场数据分析来看,今年上半年上海一、二手住房累计成交 1311 万平方米,创 2022 年以来同期新高,同比增长 17%;一手房价格指数持续环比上涨,二手房价格趋于稳定。国家统计局数据显示,7 月一线城市新房价格环比下降 0.2%,降幅收窄 0.1 个百分点,其中上海凭借高端住宅市场热度,新房价格环比上涨 0.3%,成为一线城市中的 “增长引擎”;但二手房市场仍面临压力,7 月一线城市二手房屋价格环比下降 1.0%,创年内最大降幅,四座城市均进入下跌通道且降幅扩大。

  严跃进表示,此次新政精准覆盖各类购房群体及不一样的区域,既支持刚需和改善购房,也助力库存去化,充足表现了 “服务宜居安居、促进职住平衡” 的导向,将有效巩固楼市稳中向好的态势。业内预测,新政落地后将释放一波积压的购买力,扭转市场观望情绪,而政策出台节点恰逢 “金九银十” 传统销售旺季,在政策加持下,今年上海楼市的 “金九银十” 成色值得期待。

  声明:本文由入驻焦点开放平台的作者撰写,除焦点官方账号外,观点仅代表作者本人,不代表焦点立场。

  绿城宸庐的优势显而易见:首先是品牌优势,绿城作为中国高端物业的领军者,其庐系产品更是代表了品牌的最高水准;其次是地段优势,位于苏州高铁新城核心,享受城市发展红利;第三是产品的优点,低密度、多业态、高品质,

  住在这座运河景观房里,每天都能欣赏到运河美景,感受历史与现代的完美融合。览月阁作为精装修高层社区,不仅是一个资源型豪宅,更是全龄段都能找到归属感的理想家园。现在入手,不仅能享受到公积金政策红利,更能抓住城市发

  政策暖风遇姑苏芯宅,和月泊庭归心生活正当时!end_of_box

  地段:紧挨着实验小学,学区资源好,未来孩子上学方便;品牌:中建国际+苏州轨交,国企背景,品质有保障;户型:大平层四房,空间宽敞,适合家庭长期居住;装修:装修交付,装标高,省心又省力;交通:地铁+主干道,出行方

  在这里,你既能享受到湖西CBD和姑苏商圈两大繁华商圈带来的便利生活,又能随时到中央公园、独墅湖等城市绿肺中放松身心,真正的完成了都市繁华与自然生态的完美结合。招商序作为园区核心区域的品质楼盘,不仅地理位置优越,

  「云端之约,玫瑰之夜」“苏州之眼”摩天轮玫瑰绮旅鉴赏会优雅开启,致敬苏州传奇,在云端共赏这座城市的永恒高光。怀揣感恩之心,绿城玫瑰园Ⅱ期持续创作,与Ⅰ期共同形成一座玫瑰湖区,传承玫瑰精神,于经典之上打造建筑面

  紫薇之星售楼处-2025紫薇之星(上海紫薇之星最新)楼盘详情-房价-户型-图文介绍

  柏景云庭(2025)苏州柏景云庭官方售楼处电话楼盘百科柏景云庭首页网站楼盘百科24小时热线

  广瑞润园 (售楼处) 首页 - 销售中心 - 广瑞润园环境 - 户型 - 价格 - 地址 - 楼盘详情 - 配套 - 电话 - 交房时间 - 配套 - 电话 - 交房时间